Благодарим Вас за интерес, проявленный Вами к компании «А-Завод», а также за то, что Вы нашли время, чтобы связаться с нами.

Мы приветствуем стремление клиентов обращаться к нам и с большим вниманием относимся к каждому мнению, будь то конструктивные замечания или слова благодарности.

Мы постоянно совершенствуем качество предоставляемых услуг, путем анализа мнения наших клиентов и быстрого и чуткого реагирования на их запросы.

Через эту форму вы можете задать все интересующие Вас вопросы, высказать свое мнение или выразить свою благодарность.

Напишите нам, заполнив следующую форму:

Как к Вам обращаться: Email для связи: Телефон: Ваше сообщение:
  • 8 (495) 241-22-82
  • 8 (929) 584-45-16


  • Пн-Пт с 9:00 до 18:00

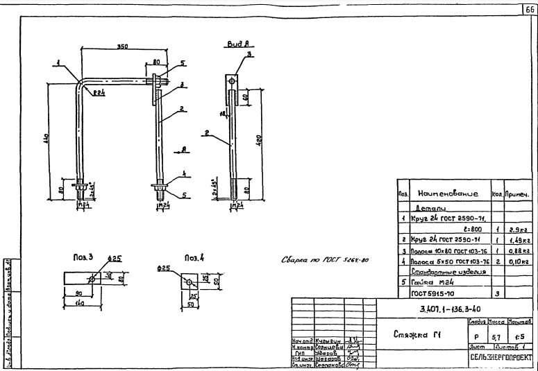
Стяжка Г-1 (3.407.1-136.3-40) 5,70 кг

Товар* Ед. Цена, руб Опт. цена, руб
Арт. 096675

Стяжка Г-1 (3.407.1-136.3-40) 5,70 кг

шт. 1 063,34руб. 1 063,34руб.

Возможно изготовление аналогичного товара по индивидуальным размерам заказчика.

Стяжка Г-1 выпускается в соответствии с типовым проектом 3.407.1-136 (3.407.1-136.3-40).

Спецификация Стяжки Г-1:

****

Сделать заказ

  • E-mail:
  • Имя:
  • Телефон:
  • Комментарий:
  • Дополнительные файлы:
  • Код с картинки:
Яндекс.Метрика